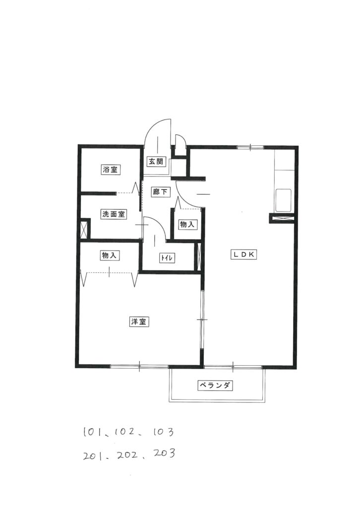
富士見のやまなみ通り沿いの広めの1LDKのお部屋(40.95㎡)で、お二人入居可能です。
甲府方面にも甲斐市方面にも出やすいです。
駐車料は1台分込みで、2台目は3,000円/月です。
山梨県立中央病院まで徒歩4分。
※12月1日よりアパート名が「アイステージ」に変わります。
| 築年月 | 2005/03 | 新築/中古 | |
|---|---|---|---|
| 面積 | 40.95m² | 計測方式 | |
| バルコニー | 向き | 南 | |
| 建物階数 | 地上2階 | 部屋階数 | 2階 |
| 建物構造 | 軽量鉄骨 | ||
| 間取内容 | |||
| 駐車場 | 取引態様 | 専任 | |
| 引渡/入居時期 | 相談 | 現況 | 空家 |
| 周辺環境 | |||
| 設備・条件 | |||
| 物件番号 | 甲府市富士見の貸アパート | ||
富士見のやまなみ通り沿いの広めの1LDKのお部屋(40.95㎡)で、お二人入居可能です。
甲府方面にも甲斐市方面にも出やすいです。
駐車料は1台分込みで、2台目は3,000円/月です。
山梨県立中央病院まで徒歩4分。
※12月1日よりアパート名が「アイステージ」に変わります。
