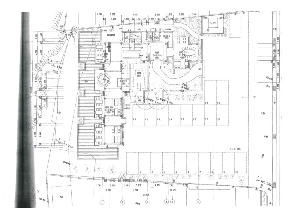
バイパス20号沿いの人気店「手打ちそば蔵」様の居抜き店舗です。
こだわってデザインされた和モダンの素敵な店舗で、厨房設備もそのまま残っていてお使いいただけます。
新築時の建築図面や写真も大切に残してあります。
| 築年月 | 2007/03 | 新築/中古 | |
|---|---|---|---|
| 面積 | 258.38m² | 計測方式 | |
| バルコニー | 向き | ||
| 建物階数 | 地上1階 | 部屋階数 | |
| 建物構造 | RC | ||
| 間取内容 | |||
| 駐車場 | 取引態様 | 一般 | |
| 引渡/入居時期 | 相談 | 現況 | 空家 |
| 周辺環境 | |||
| 設備・条件 | |||
| 物件番号 | 甲斐市竜王の貸店舗(元手打ちそば蔵様) | ||
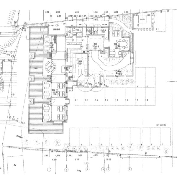
バイパス20号沿いの人気店「手打ちそば蔵」様の居抜き店舗です。
こだわってデザインされた和モダンの素敵な店舗で、厨房設備もそのまま残っていてお使いいただけます。
新築時の建築図面や写真も大切に残してあります。
